Princes Gate, SW7
173 333 £ / mois
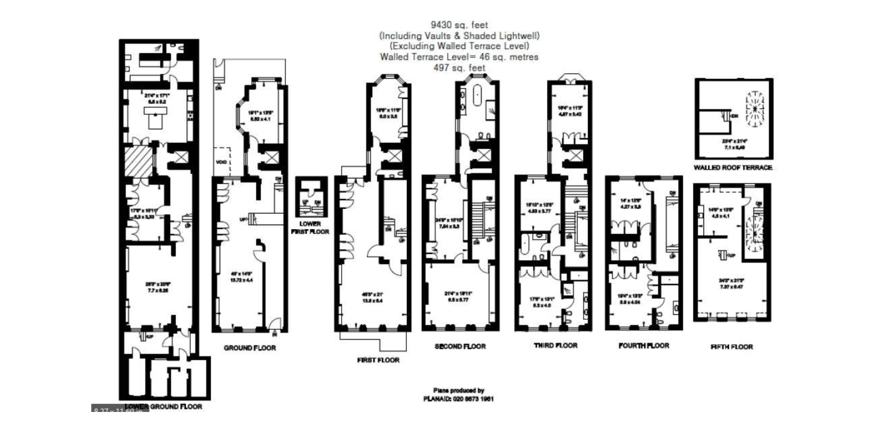
876 m²7 chambresCharges forfaitaires: 0 £plan
Il s'agit d'une superbe maison classée Grade II, aux proportions d'ambassadeur. Située derrière une façade en stuc d'époque, la maison a été rénovée pour offrir un fabuleux mélange de finitions modernes tout en conservant ses caractéristiques d'époque. Avec ses 4 salles de réception et ses 2 salles à manger, elle est parfaite pour accueillir des occasions formelles, tout en offrant suffisamment d'espace pour que toute la famille puisse se détendre dans le confort. Il y a une fantastique terrasse sur le toit pour profiter au maximum des mois d'été à venir, à laquelle on accède par une salle de réception au dernier étage avec une deuxième cuisine pour que vous puissiez profiter des repas à l'extérieur en toute simplicité.