Breteuil logo
£10,833 per month

London South KensingtonUnited Kingdom

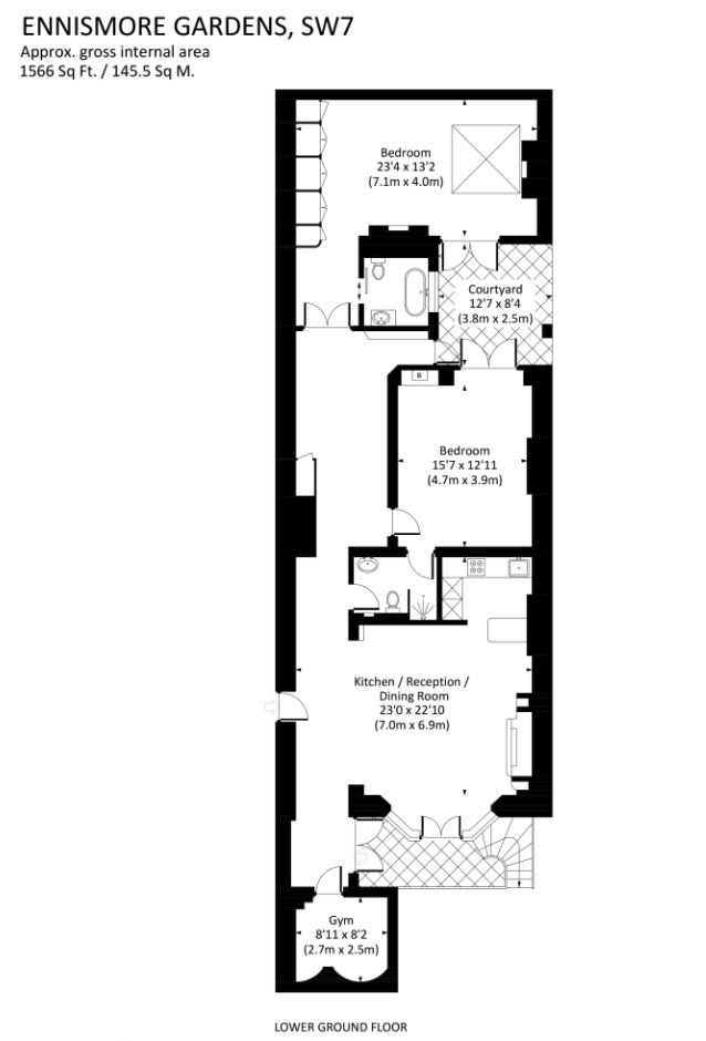
Ennismore Gardens, SW7

145 m²

2 rooms

London South KensingtonUnited Kingdom

Ennismore Gardens, SW7

This is a stunning apartment finished to a very high standard, with its own entrance, in a period building in the heart of Knightsbridge. With a spacious reception room, wood flooring throughout and modern, semi open-plan kitchen it is the perfect place to relax in luxury after a busy day out and about in London. The kitchen is perfect for when you want a home-cooked meal for a change. The 2 double bedrooms both open out into the private courtyard which can also be accessed from the hallway. The high quality bathrooms are both en-suite with the one to the 2nd bedroom having a Jack & Jill layout. There is also a home gym if you feel like a workout. This is a fantastic home to make your holiday to London complete. The hardest part of staying here will be leaving.

The apartment is on one of the most sought after garden squares in Knightsbridge. The area has long been the go-to destination for the world's elite and with good reason. The high-end designer boutiques of Brompton Road and Sloane Street as well as Harrods are a short stroll away. There is a fabulous array of award-winning restaurants close by as well as more relaxed places to eat. For when you feel like some culture the Royal Albert Hall is very close by and it is a short ride to the theatres of the West End. Hyde Park is also moments away if you want to enjoy the peace of the wide open green spaces.

Holding deposit: Equal to 1 weeks rent
Security deposit: Equal to 1 months rent
Borough: Westminster
Council tax band: G
EPC rating: E
Lease length: Short let

Real estate services

  • Outdoor space
  • Furnished
  • Short term
  • Shopping area

Real estate regulations

  • Fees charged to the seller
  • No ongoing procedure
  • Information about the risks to which this property is exposed is available on the Georisques website: www.georisques.gouv.fr