Mairie de Montreuil
€350,000€6,481 / m2
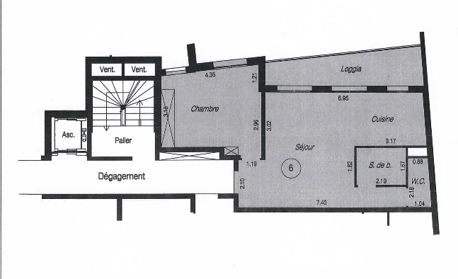
Exclusivity agreement54 m²1 roomDPE: C (129 kWh/m².y) / GES: C (26kg CO2/m².y)No ongoing procedureFloor plan (PDF)
sold leased
Les informations sur les risques auxquels ce bien est exposé sont disponibles sur le site Géorisques : www.georisques.gouv.fr