Breteuil logo

Exclusivity agreement

€790,000€15,496 / m2

Paris 16èmeFrance

Tour - Pompe

51 m²

1 room

Annual expenses €3,180

Condo 23 parcels

Paris 16èmeFrance

Tour - Pompe

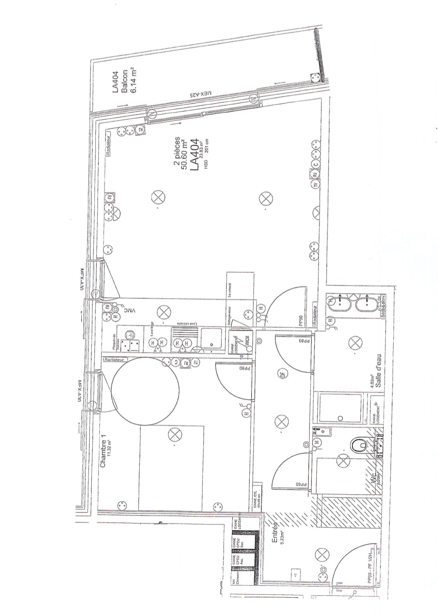
Ideally located close to the shops on rue de la Pompe and rue de la Tour, this 51 m² apartment is on the 4th floor of a luxury building built in 2015. In absolute calm, fully facing the garden, it offers a pleasant unobstructed view and plenty of natural light thanks to its southeast exposure. Its optimized layout includes an entrance hall with storage space, a 24 m² living room with open kitchen, extended by a terrace overlooking the garden, a comfortable bedroom, a shower room and a separate toilet. A cellar completes this property. Exclusive to Breteuil.

Real estate services

  • Elevator
  • PRM access
  • Shopping area

Real estate regulations

  • Fees charged to the seller
  • Total parcels 23
  • No ongoing procedure
  • Information about the risks to which this property is exposed is available on the Georisques website: www.georisques.gouv.fr
Energy performance diagnosis chartB
Greenhouse gas emissions chartA