Pernety
€690,000€12,299 / m2
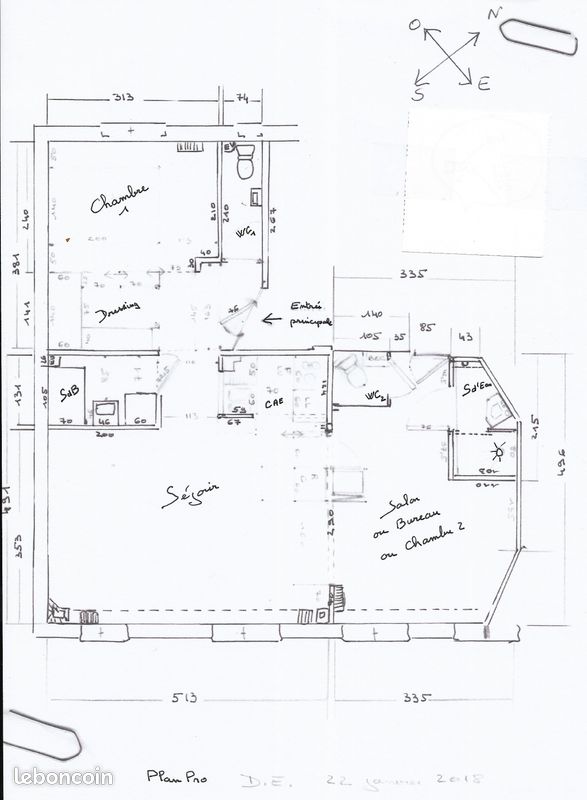
56.1 m²2 roomsFees charged to the sellerDPE: E (304 kWh/m².y) / GES: E (53kg CO2/m².y)No ongoing procedureFloor plan (PDF)
Village Pernety - Close to shops and transport, well-maintained, secure 1930 building. On 1st floor with access by staircase, bright 56.10 m² apartment with space-saving floor plan. Entrance hall, south-east-facing living room overlooking greenery, semi-open fitted kitchen, two bedrooms, one of which overlooks the courtyard, bathroom, shower room, dressing room, two separate toilets. No condominium work required (interior renovation, rendering, building boiler replaced recently). Cellar on first floor. Diagnostics in progress.
Les informations sur les risques auxquels ce bien est exposé sont disponibles sur le site Géorisques : www.georisques.gouv.fr