Trocadéro - Passy
€1,100,000€12,644 / m2
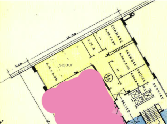
Exclusivity agreement87 m²2 roomsFees incl. tax charged to the buyer €42,308 / 4%Price excluding fees: €1,057,692DPE: C (170 kWh/m².y) / GES: D (44kg CO2/m².y)No ongoing procedureFloor plan (PDF)
Trocadéro - Passy. Ideally located in the heart of numerous shops, transport facilities and renowned schools. On the fourth floor, accessible by elevator, of a beautiful mid-twentieth-century corner building of good standing and security (janitor), 87 m2 family apartment, with a compact, efficient floor plan and spacious rooms. Entrance gallery, separate fitted kitchen with dining area, two bedrooms in absolute calm with plenty of natural light, bathroom with toilet, plenty of storage space. Work required.
Les informations sur les risques auxquels ce bien est exposé sont disponibles sur le site Géorisques : www.georisques.gouv.fr