Turenne - Carreau du Temple
€855,000€11,400 / m2
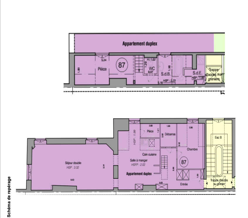
75 m²1 roomPrice excluding fees: €822,115DPE: F (412 kWh/m².y) / GES: F (75kg CO2/m².y)Housing with excessive energy consumptionNo ongoing procedureFloor plan (PDF)
Between Carreau du Temple and rue de Turenne, in an exceptional setting and in the heart of a former 18th-century town house opening onto a garden, duplex 75m2 sq. ft. apartment to be completely renovated, on the 4th and top floor by staircase. Double-exposed living room with cathedral ceiling, semi-open kitchen, attic bedroom and storage space. In the attic, accessible via a private staircase, bathroom, shower and toilet. Cellar.
Les informations sur les risques auxquels ce bien est exposé sont disponibles sur le site Géorisques : www.georisques.gouv.fr