Suboffer
Paris 16èmeFrance
Victor Hugo - Longchamp
66 m²
1 room
Paris 16èmeFrance
Victor Hugo - Longchamp
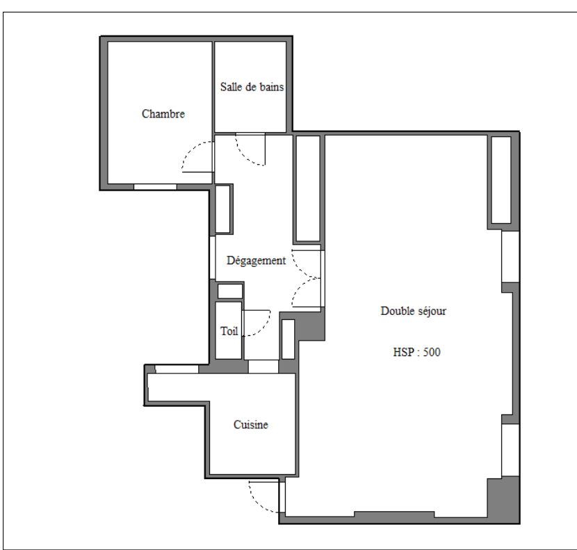
Prime address in the heart of a private, secure lane. On the 2nd and top floor, via staircase, of a former private mansion, this charming apartment boasts exceptional volumes thanks to its 5 m high ceilings. Entrance hall, superb reception room, kitchen, bedroom, bathroom, separate toilet. Cellar. Rare property in absolute calm. Non-fixed parking space in front of the house.
F