Auteuil sud
€1,100,000€11,000 / m2
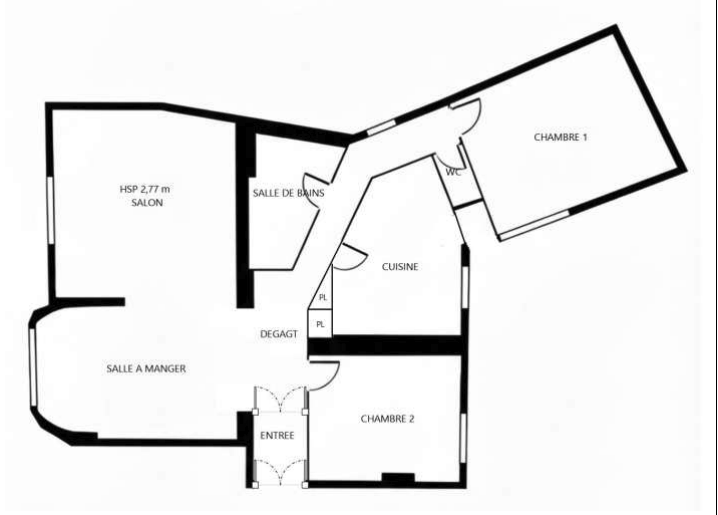
Exclusivity agreement100 m²2 roomsFees incl. tax charged to the buyer €42,308 / 4%Price excluding fees: €1,057,692DPE: F (388 kWh/m².y) / GES: E (58kg CO2/m².y)Housing with excessive energy consumptionNo ongoing procedureFloor plan (PDF)
Beautifully-constructed 1920s building with high-quality common areas, close to shops and transport links. On the 7th and top floor, served by a mid-level elevator, this 100 m² apartment boasts spacious rooms, old-world charm and plenty of natural light thanks to its unobstructed view and southeast exposure. Entrance hall, double living room, separate fitted and equipped kitchen, hallway with cupboards, two bedrooms, bathroom and separate toilet. Cellar. Exclusive.
Les informations sur les risques auxquels ce bien est exposé sont disponibles sur le site Géorisques : www.georisques.gouv.fr