Cambronne
€945,000€12,600 / m2
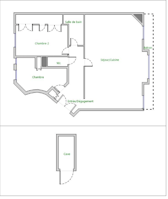
75 m²2 roomsPrice excluding fees: €915,000DPE: D (212 kWh/m².y) / GES: D (36kg CO2/m².y)No ongoing procedureFloor plan (PDF)
Excellent quality stone building with janitor service, very attractive 74m² through apartment on 2nd floor with elevator, balcony, bright (west-facing) and renovated with quality materials. Entrance hall, double reception room, open-plan fitted and equipped kitchen, two bedrooms opening onto garden, bathroom with bath, toilet. Old-style cachet. Plenty of storage space. Cellar.
Les informations sur les risques auxquels ce bien est exposé sont disponibles sur le site Géorisques : www.georisques.gouv.fr