Campagne à Paris
€945,000€9,450 / m2
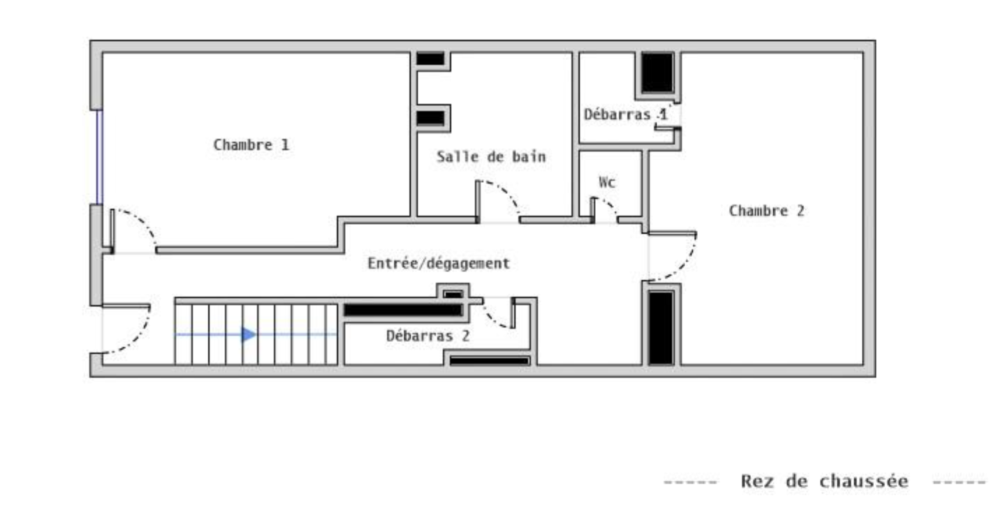
100 m²3 roomsFees charged to the sellerPrice excluding fees: €917,476DPE: B (77 kWh/m².y) / GES: A (1kg CO2/m².y)No ongoing procedureFloor plan (PDF)
Close to Place Gambetta, shops and transport, "Campagne à Paris" is a quiet, bright, freehold family home of approx. 100 m², benefiting from pleasant outdoor spaces and quality renovation. Elevated first floor: entrance, 2 bedrooms, bathroom, separate toilet, laundry room, storage space. 1st floor: living room, open kitchen, terrace. 2nd floor: master bedroom, shower room, toilet, terrace, plenty of storage space.
Les informations sur les risques auxquels ce bien est exposé sont disponibles sur le site Géorisques : www.georisques.gouv.fr