Custine-Chateau Rouge
€799,000€9,988 / m2
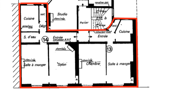
Exclusivity agreement80 m²3 roomsPrice excluding fees: €761,000DPE: Diagnostics in progressNo ongoing procedureFloor plan (PDF)
Located on rue Custine, a stone's throw from shops and transport, on the fourth floor served by elevator, an 80m2 apartment with an unobstructed view of the square, not overlooked and with a space-saving layout. It comprises an entrance hall, kitchen, living room, three bedrooms, bathroom and separate toilet. Two bedrooms and a double reception room are possible. The opening onto the square may be of concern to some buyers concerned about noise pollution, and the state of the communal areas may also be a cause for concern. We'll need to reassure buyers as to the causes and planned work.
Les informations sur les risques auxquels ce bien est exposé sont disponibles sur le site Géorisques : www.georisques.gouv.fr