Breteuil logo

Suboffer

€968,000€10,637 / m2

Paris 6èmeFrance

Duroc - Montparnasse

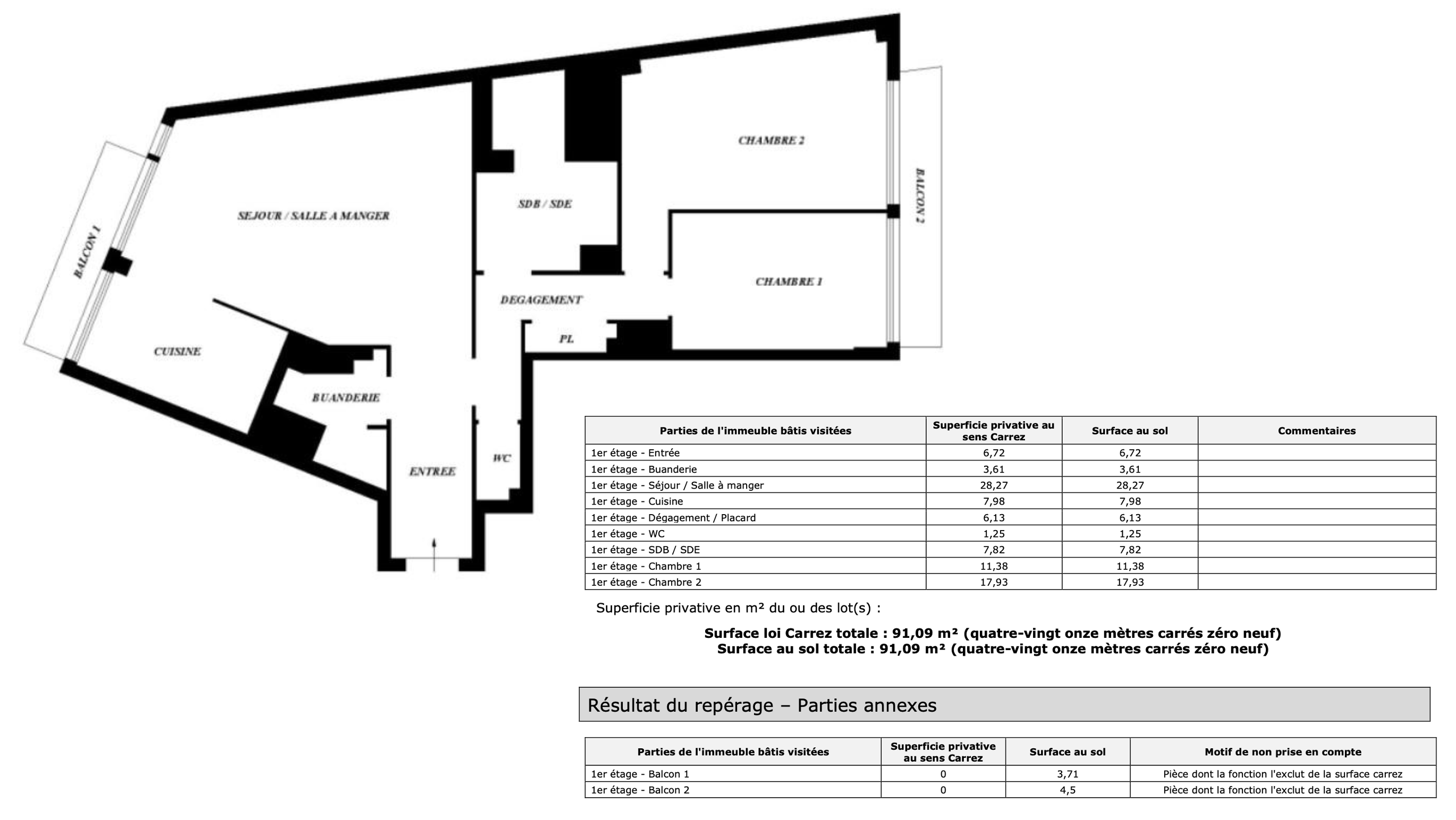
91 m²

2 rooms

Annual expenses €5,140

Condo 90 parcels

Paris 6èmeFrance

Duroc - Montparnasse

Between Duroc and Montparnasse, recent building of good standing benefiting from the services of a janitor. On 2nd floor, served by elevator, 91 m² apartment to refresh, south - south/west facing, pleasant floor plan with balconies. Entrance hall, spacious living room, semi-open kitchen opening onto sunny balcony, two bedrooms with balcony overlooking garden, large shower room, laundry room and separate toilet. Cellar. Garage available at extra cost.

Real estate regulations

  • Fees charged to the seller
  • Total parcels 90
  • No ongoing procedure
  • Information about the risks to which this property is exposed is available on the Georisques website: www.georisques.gouv.fr
Energy performance diagnosis chartE
Greenhouse gas emissions chartE