Lamarck-Clignancourt
€550,000€9,594 / m2
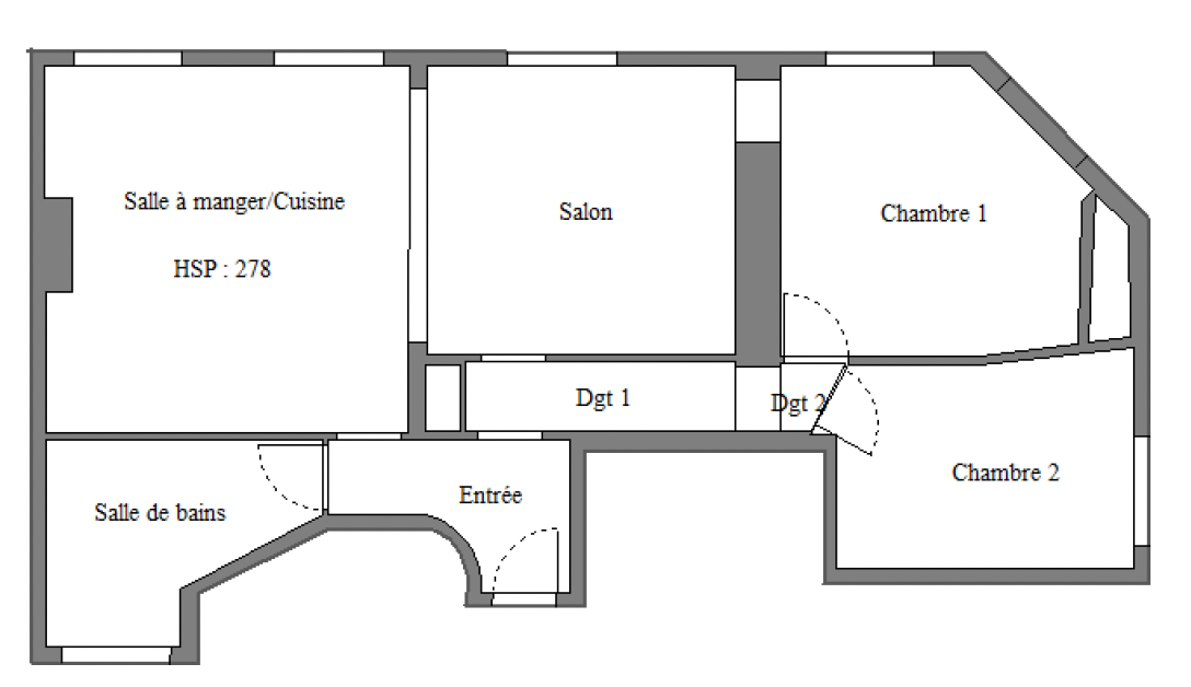
Exclusivity agreement57.33 m²2 roomsFees incl. tax charged to the buyer €21,154 / 4%Price excluding fees: €528,846DPE: G (426 kWh/m².y) / GES: C (15kg CO2/m².y)Housing with excessive energy consumptionNo ongoing procedureFloor plan (PDF)
Corner building at the foot of the Butte Montmartre, charming 58 m² apartment on 1st floor, served by staircase, benefiting from good light and an excellent floor plan with no loss of space. Entrance hall, double living room with open-plan kitchen, 2 good-sized bedrooms (one corner), bathroom with toilet. Storage room on landing.
Les informations sur les risques auxquels ce bien est exposé sont disponibles sur le site Géorisques : www.georisques.gouv.fr