phone iconmail icon
Mairie du XV
€875,500€11,962 / m2

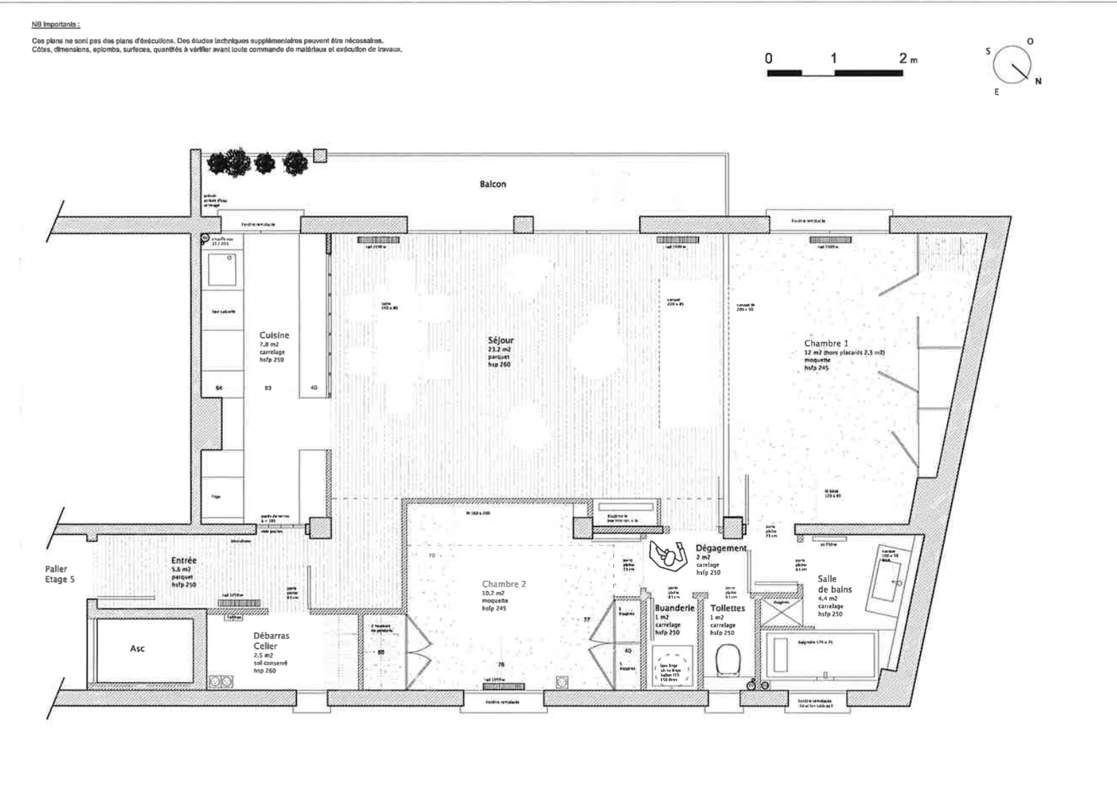
73.19 m²2 roomsDPE: Diagnostics in progressNo ongoing procedureFloor plan (PDF)pdf icon

In a recent building with well-maintained communal areas, ideally located right next to the town hall and all shopping facilities of Cambronne-Lecourbe, beautiful and sun-filled dual-aspect apartment on the 5th floor (with a lift), fully refurbished by an architect, offering a balcony and a perfect layout. Entrance hall, double living room opening out onto a south/south-west facing balcony, kitchen with a glass partition wall overlooking the living room, 2 bedrooms, bathroom, toilet, utility room and walk-in wardrobe, extensive storage space. Cellar.
Les informations sur les risques auxquels ce bien est exposé sont disponibles sur le site Géorisques : www.georisques.gouv.fr
€875,500€11,962 / m2

73.19 m²2 roomsDPE: Diagnostics in progressNo ongoing procedureFloor plan (PDF)pdf icon

phone iconmail icon
AGENCY BRETEUIL 15ÈME - CAMBRONNE
Tel. : +33 (0)1 44 38 01 01E-mail : cambronne@breteuilhomes.com