phone iconmail icon
Marché Saint-Germain
€1,395,000€14,381 / m2

97 m²2 roomsDPE: Diagnostics in progressNo ongoing procedureFloor plan (PDF)pdf icon

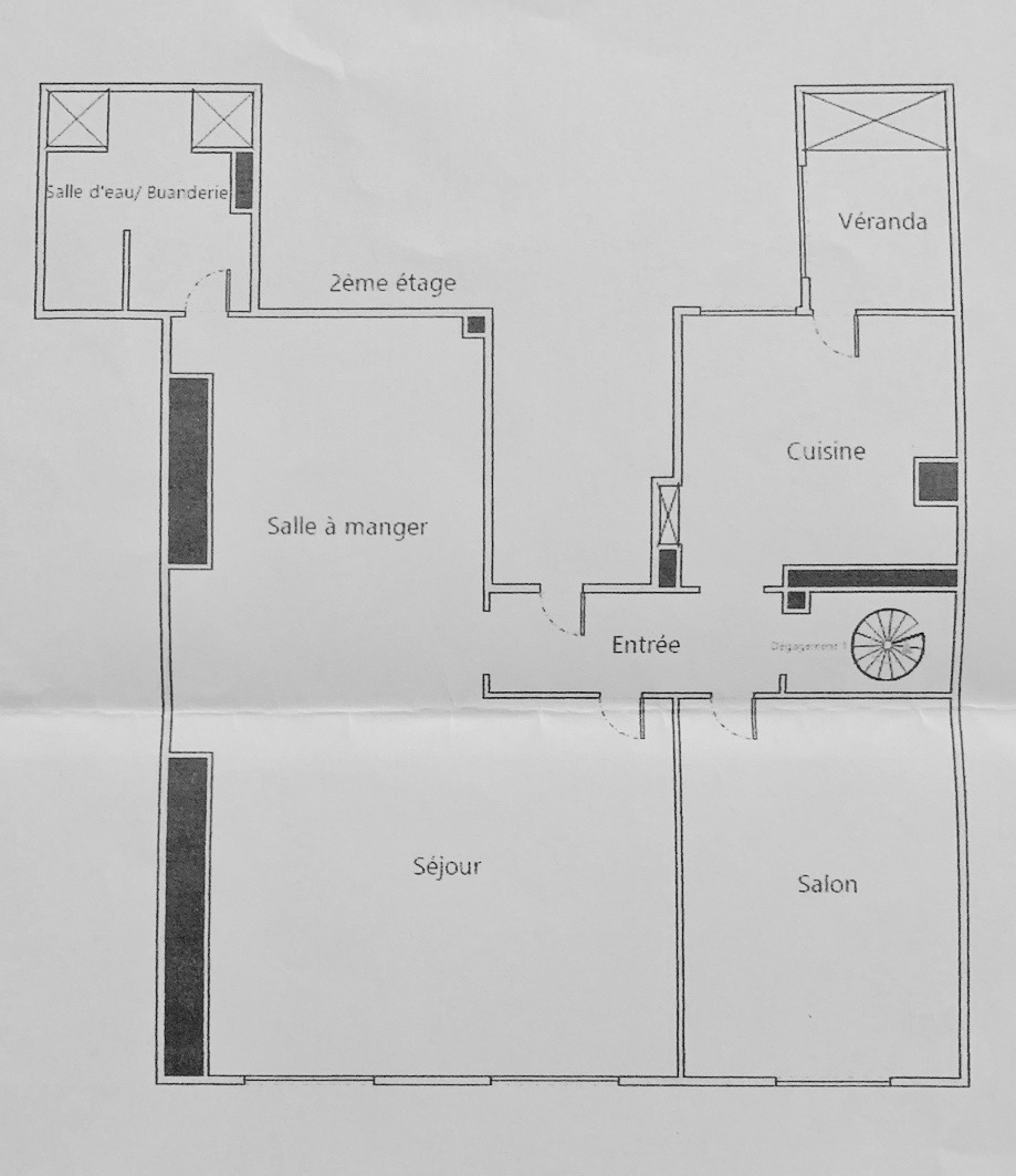
In a building dating back to the late 18th century, with well-maintained communal areas, duplex apartment on the 2nd and 3rd floors (no lift), benefitting from airy rooms and period features (herringbone parquet flooring and exposed beams). On the 1st level: entrance hall, living room, dining room, separate kitchen opening onto a 5.15m²/53ft² loggia/terrace, bedroom, shower room and toilet. On the 2nd level: master bedroom with en-suite bathroom, walk-in wardrobe and separate toilet.
Les informations sur les risques auxquels ce bien est exposé sont disponibles sur le site Géorisques : www.georisques.gouv.fr
€1,395,000€14,381 / m2

97 m²2 roomsDPE: Diagnostics in progressNo ongoing procedureFloor plan (PDF)pdf icon

phone iconmail icon
AGENCY BRETEUIL 6ÈME - SAINT PLACIDE
Tel. : +33 (0)1 42 84 85 00E-mail : saintplacide@breteuilhomes.com