Breteuil logo

Suboffer

€1,800,000€13,953 / m2

Paris 16èmeFrance

Passy-Trocadéro

129 m²

3 rooms

Annual expenses €6,000

Condo 40 parcels

Paris 16èmeFrance

Passy-Trocadéro

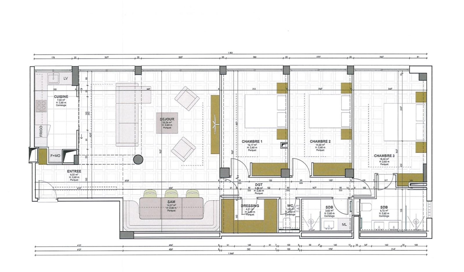
Ideally located in the heart of Passy's many shops, transport facilities and renowned schools. On the sixth floor, served by elevator, of a pleasant mid-twentieth century luxury residence, secure and planted with trees, superb air-conditioned family apartment with a surface area of 128.15m² loi Carrez, in absolute calm and unoverlooked, tastefully renovated and benefiting from an exemplary floor plan and sunshine thanks to its south-west orientation. Entrance hall, vast reception room, dining area, open-plan fitted and equipped kitchen, two large bedrooms (possibility of 3 as originally), including a master suite with en-suite shower room and toilet, bathroom, guest toilet, dressing room and plenty of storage space. Original three-bedroom configuration. Cellar.

Real estate services

  • Elevator
  • Shopping area

Real estate regulations

  • Fees charged to the seller
  • Total parcels 40
  • No ongoing procedure
  • Information about the risks to which this property is exposed is available on the Georisques website: www.georisques.gouv.fr
Energy performance diagnosis chartD
Greenhouse gas emissions chartD