Saint James
€1,490,000€13,186 / m2
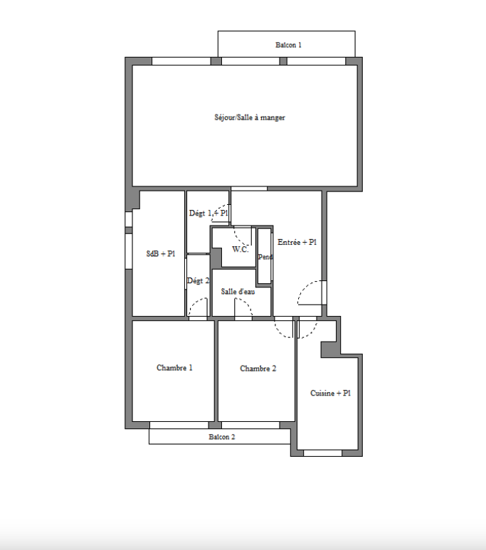
Exclusivity agreement113 m²2 roomsPrice excluding fees: €1,432,279DPE: D (222 kWh/m².y) / GES: B (8kg CO2/m².y)No ongoing procedureFloor plan (PDF)
In a 4-storey, 1980 building of good quality, surrounded by greenery, with janitor service, 3rd floor, 113m² apartment, unobstructed view, not overlooked, carefully decorated and traversing: entrance leading to a vast south-facing double living room with a large balcony, bathed in light, unobstructed view, fully fitted kitchen/diner, master bedroom suite with bathroom and dressing room, second bedroom with shower room, separate toilet, plenty of storage space.
Cellar
Possibility of purchasing 2 parking spaces (70,000e).
Les informations sur les risques auxquels ce bien est exposé sont disponibles sur le site Géorisques : www.georisques.gouv.fr