Breteuil logo
€1,345,000€12,582 / m2

Paris 11èmeFrance

Square Gardette

107 m²

3 rooms

Annual expenses €4,000

Condo 25 parcels

Paris 11èmeFrance

Square Gardette

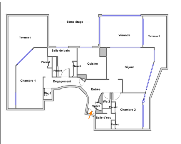
Saint Ambroise / Atelier des Lumières area, close to shops, transport and schools, from crèches to colleges. A student, family and cultural district, a luxury building built in 1981, on the 6th and top floor with elevator.
Bright, unoverlooked garden apartment facing south-east.
Entrance hall, living room and winter garden, open-plan kitchen, 2 bedrooms (possibility 3), 2 shower rooms, 2 toilets. 2 terraces extended by balconies, the first overlooking the south-east-facing garden, the second the north.
Private cellar and parking space.
The condominium also benefits from a bicycle room and another for 2-wheelers.
Pleasure garden.

Real estate services

  • Elevator
  • Shopping area
  • Parking

Real estate regulations

  • Fees charged to the seller
  • Total parcels 25
  • No ongoing procedure
  • Information about the risks to which this property is exposed is available on the Georisques website: www.georisques.gouv.fr
Energy performance diagnosis chartE
Greenhouse gas emissions chartB