Bassin de la Villette
€1,085,000€8,955 / m2
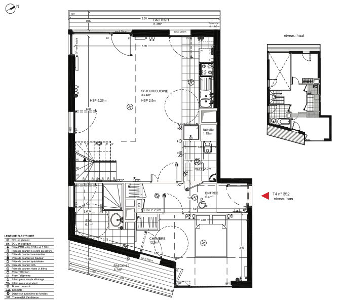
Exclusivity agreement121.16 m²4 roomsDPE: C (170 kWh/m².y) / GES: C (20kg CO2/m².y)No ongoing procedureFloor plan (PDF)
In a recent building from 2018, ideally located near Bassin de la Villette, light-filled split-level family apartment (Carrez law: 109.45m²/1,178ft²) on the 5th floor with a lift, offering open views. On the 1st level: entrance hall with storage space, living room, fully equipped open-plan kitchen, balcony (facing south and west), master bedroom, balcony, separate toilet. On the 2nd level: office with a glass partition wall, 2 beautiful bedrooms, balconies, bathroom, utility room, separate toilet. Cellar. Parking space also available for sale.
Les informations sur les risques auxquels ce bien est exposé sont disponibles sur le site Géorisques : www.georisques.gouv.fr