Montparnasse-Pasteur
€1,345,000€10,346 / m2
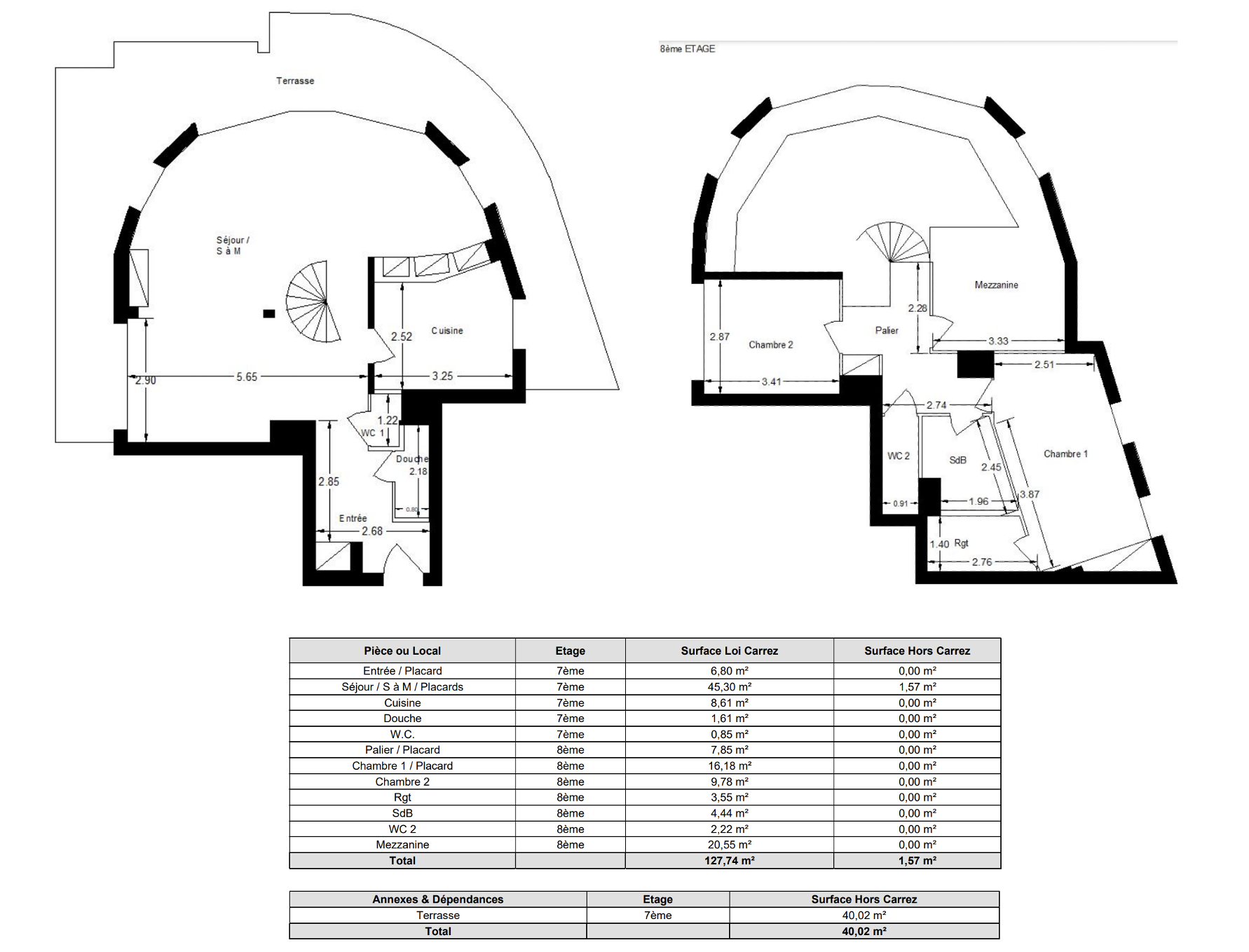
130 m²3 roomsFees charged to the sellerPrice excluding fees: €1,304,559DPE: D (233 kWh/m².y) / GES: B (8kg CO2/m².y)No ongoing procedureFloor plan (PDF)
Luxury residence built in the 2000s, very close to Montparnasse station. On the 7th and top floor, 128 m² Loi Carrez duplex apartment with 40 m² terrace, unoverlooked and triple exposure (east, south, west). On the first level, entrance hall with storage space, vast cathedral living-dining room opening onto a 40 m² terrace, open-plan fitted and equipped kitchen, shower room with laundry area, separate toilet. Upper level: two bedrooms, one with dressing room, study (possibility of 3rd bedroom), bathroom, separate toilet, plenty of storage space. Two cellars. Parking and two boxes.
Les informations sur les risques auxquels ce bien est exposé sont disponibles sur le site Géorisques : www.georisques.gouv.fr