Neuilly- Appartement
€1,450,000€10,276 / m2
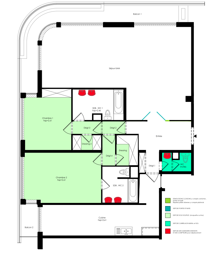
141.1 m²3 roomsFees incl. tax charged to the buyer €56,000 / 4.02%Price excluding fees: €1,394,000DPE: E (323 kWh/m².y) / GES: B (11kg CO2/m².y)No ongoing procedureFloor plan (PDF)
Rue de Chézy. In the area of école bleue, collège and lycée Pasteur. In a recent, well-maintained building, bright 141 m² family apartment on the fourth floor with elevator access and janitor services.
Entrance hall, large 54 m² reception room opening onto a balcony with unobstructed views, spacious 19 m² kitchen/dining room, two bedrooms with en suite bathrooms, toilets and dressing rooms, plenty of storage space and guest toilet. Great potential. Possibility of creating a third bedroom and open kitchen. Two cellars. Large parking area. Green spaces.
Les informations sur les risques auxquels ce bien est exposé sont disponibles sur le site Géorisques : www.georisques.gouv.fr