Place Voltaire
€1,200,000€10,435 / m2
115 m²3 roomsFees incl. tax charged to the buyer €46,154 / 4%Price excluding fees: €1,153,846DPE: C (115 kWh/m².y) / GES: C (28kg CO2/m².y)No ongoing procedureFloor plan (PDF)
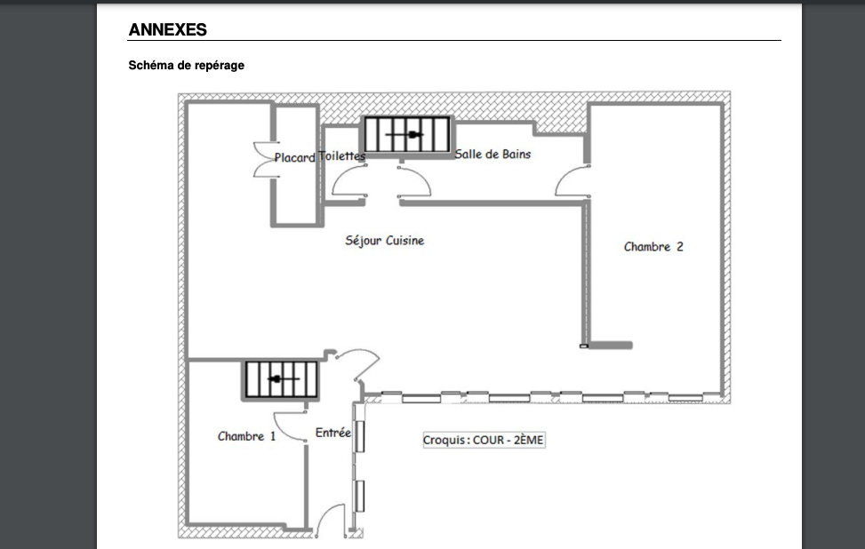
Second and top floor by staircase, industrial building rehabilitated in 1996, brickwork and ironwork, green facade. 2-in-1 apartment: entrance, living room, dining area, open kitchen, bedroom, bathroom, separate toilet. Mezzanine: office opening onto the living room, bedroom or roof terrace.
On the second level, a 2-room outbuilding.
Condominium with permanent janitor.
Les informations sur les risques auxquels ce bien est exposé sont disponibles sur le site Géorisques : www.georisques.gouv.fr