Jourdain
€920,000€6,813 / m2
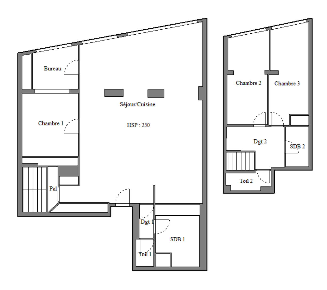
Exclusivity agreement135.04 m²3 roomsFees charged to the sellerDPE: D (207 kWh/m².y) / GES: D (38kg CO2/m².y)No ongoing procedureFloor plan (PDF)
Jourdain, a stone's throw from the village and its shops, Belleville park, transport and schools. Recent building from the 70's, 138 m² duplex with good layout and spacious rooms. 1st floor: spacious double reception room, open-plan fitted and equipped kitchen, master bedroom with dressing room and study, bathroom, laundry room and separate toilet. First floor: two bedrooms with storage space, bathroom and toilet. Two cellars. Additional parking space close to the apartment for €25,000. Exclusive to Breteuil.
Les informations sur les risques auxquels ce bien est exposé sont disponibles sur le site Géorisques : www.georisques.gouv.fr