Les Halles - Rambuteau
€1,430,000€11,626 / m2
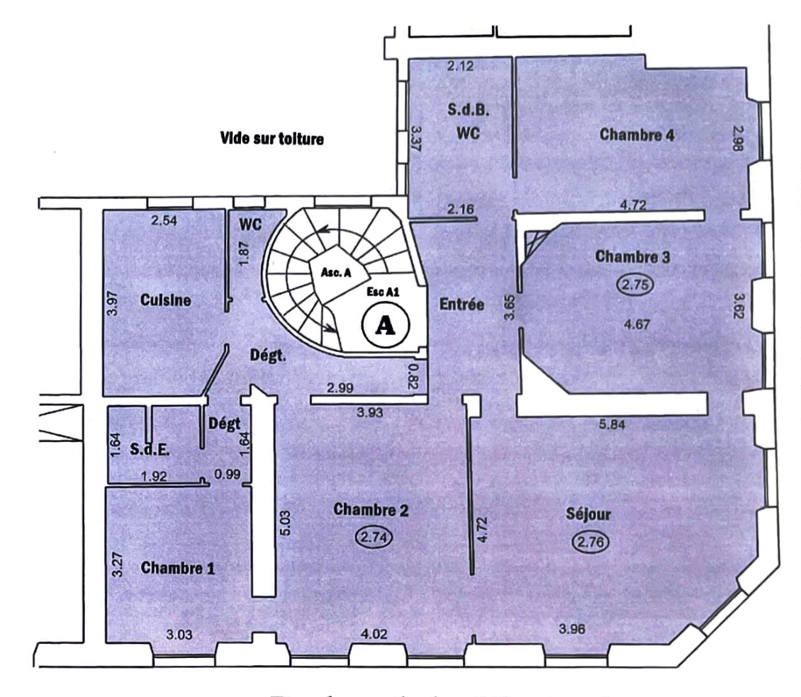
123 m²3 roomsDPE: C (151 kWh/m².y) / GES: D (32kg CO2/m².y)No ongoing procedureFloor plan (PDF)
Just a stone's throw from the Centre Pompidou, on the 3rd floor of an old building with elevator and janitor, a beautiful family and reception apartment with a floor area of 126 m2 (122.93 m2 loi Carrez). The only one of its kind on the first floor, this walk-through apartment distributes an entrance hall with cupboard, a double living room overlooking the street with unobstructed views and plenty of natural light thanks to its 3 large windows, a dining room, a separate fitted and equipped kitchen, 3 good-sized bedrooms with cupboards, a spacious bathroom with toilet and laundry area, a shower room and a guest toilet. The apartment is in very good condition. The noble elements of the Haussmann style have been preserved (parquet flooring, moldings, classic and Prussian fireplaces). Mixed-use permitted. Renovation of common areas approved.
Les informations sur les risques auxquels ce bien est exposé sont disponibles sur le site Géorisques : www.georisques.gouv.fr