Raspail
€1,445,000€9,633 / m2
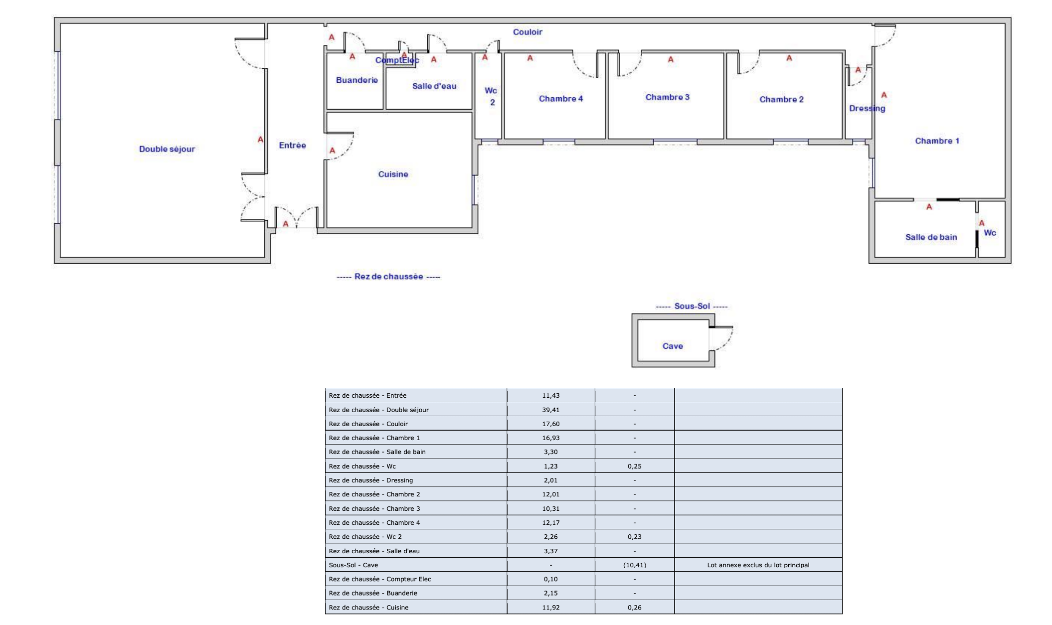
150 m²4 roomsFees charged to the sellerDPE: D (210 kWh/m².y) / GES: D (46kg CO2/m².y)No ongoing procedureFloor plan (PDF)
Just a few steps from the Raspail metro station, a beautiful Haussmann-style building of the highest quality, with janitor services. Bright, 146 m² Loi Carrez family apartment in good condition, retaining its original charm, with high ceilings and located on the raised first floor. Entrance hall, double living room, large independent kitchen, four bedrooms all overlooking the courtyard, including a master suite with bathroom and toilet, shower room, laundry room, storeroom and separate toilet. Bike storage in building.
Les informations sur les risques auxquels ce bien est exposé sont disponibles sur le site Géorisques : www.georisques.gouv.fr