Vaneau
€700,000€13,208 / m2
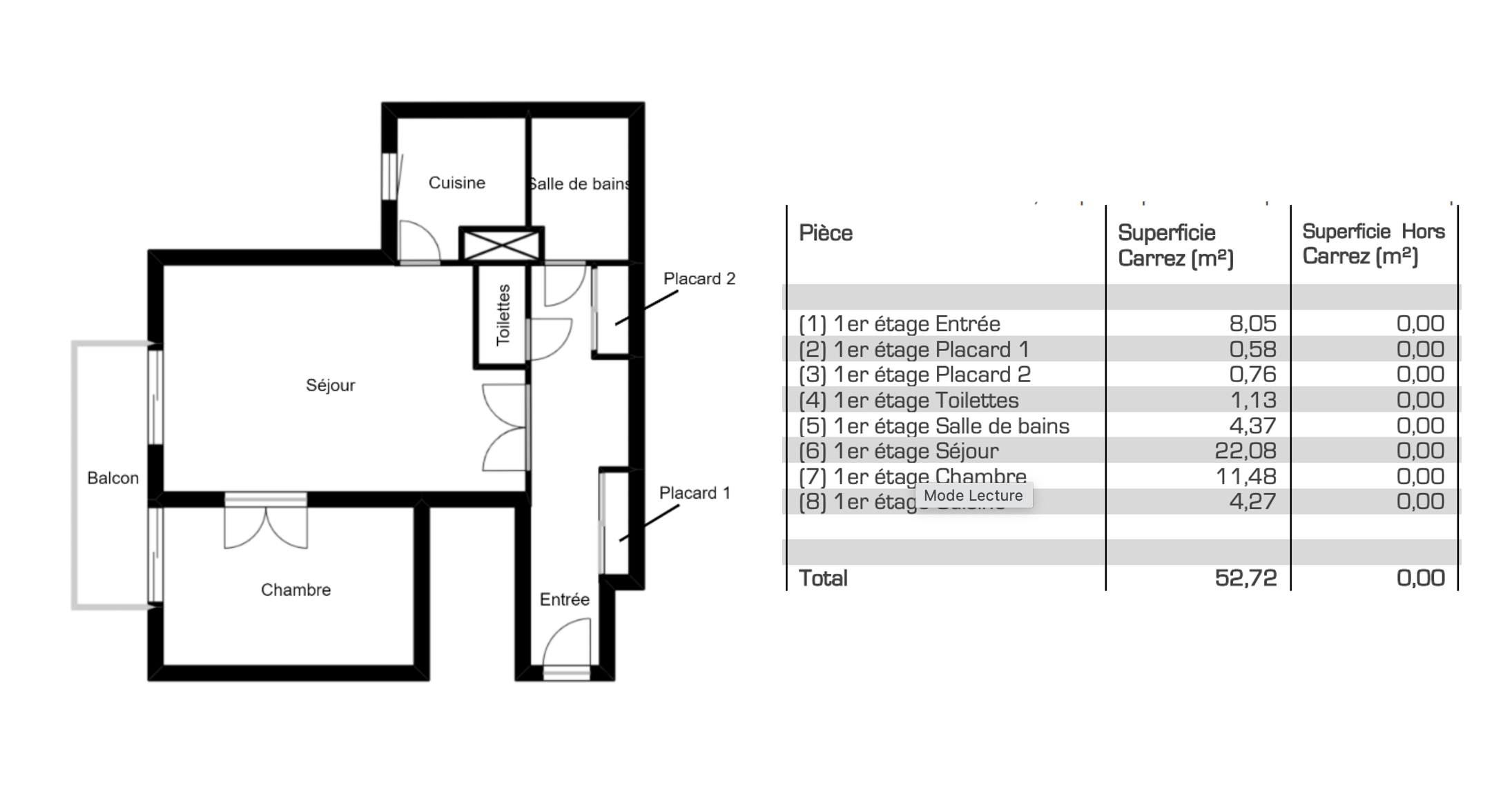
Exclusivity agreement53 m²1 roomDPE: E (279 kWh/m².y) / GES: D (34kg CO2/m².y)No ongoing procedureFloor plan (PDF)
Beautiful new building with janitor service, ideally located in a quiet street close to shops, Bon Marché and Vaneau district transport. Pleasant 53m² apartment (Carrez law), located on the 1st floor with elevator access to the garden, in a quiet location, with a large balcony offering a lovely wooded view. Entrance hall, living room opening onto balcony, separate kitchen, bedroom with balcony, bathroom, separate toilet and plenty of storage space. Cellar space. Parking space available.
Les informations sur les risques auxquels ce bien est exposé sont disponibles sur le site Géorisques : www.georisques.gouv.fr