Dupleix - Beaugrenelle
€880,000€11,429 / m2
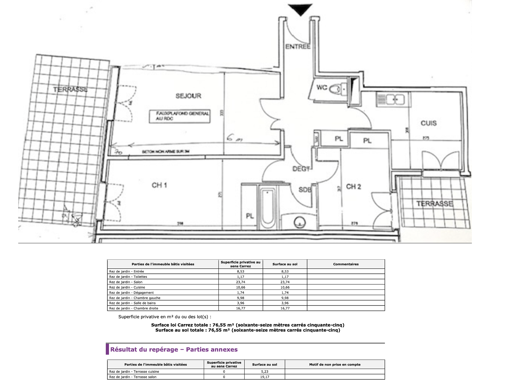
77 m²2 roomsFees charged to the sellerDPE: D (186 kWh/m².y) / GES: A (5kg CO2/m².y)No ongoing procedureFloor plan (PDF)
Beaugrenelle-Dupleix. Close to shops, transport and schools. On the garden level of an attractive, modern and secure building, this bright apartment features a functional floor plan with no loss of space. Entrance hall, living room opening onto a large 20m² terrace facing south-west, separate kitchen opening onto a second 5m² terrace, two bedrooms, bathroom, separate toilet. Liberal profession authorized. Cellar. Additional parking available in the building.
Les informations sur les risques auxquels ce bien est exposé sont disponibles sur le site Géorisques : www.georisques.gouv.fr