Gros Caillou
€945,000€12,600 / m2
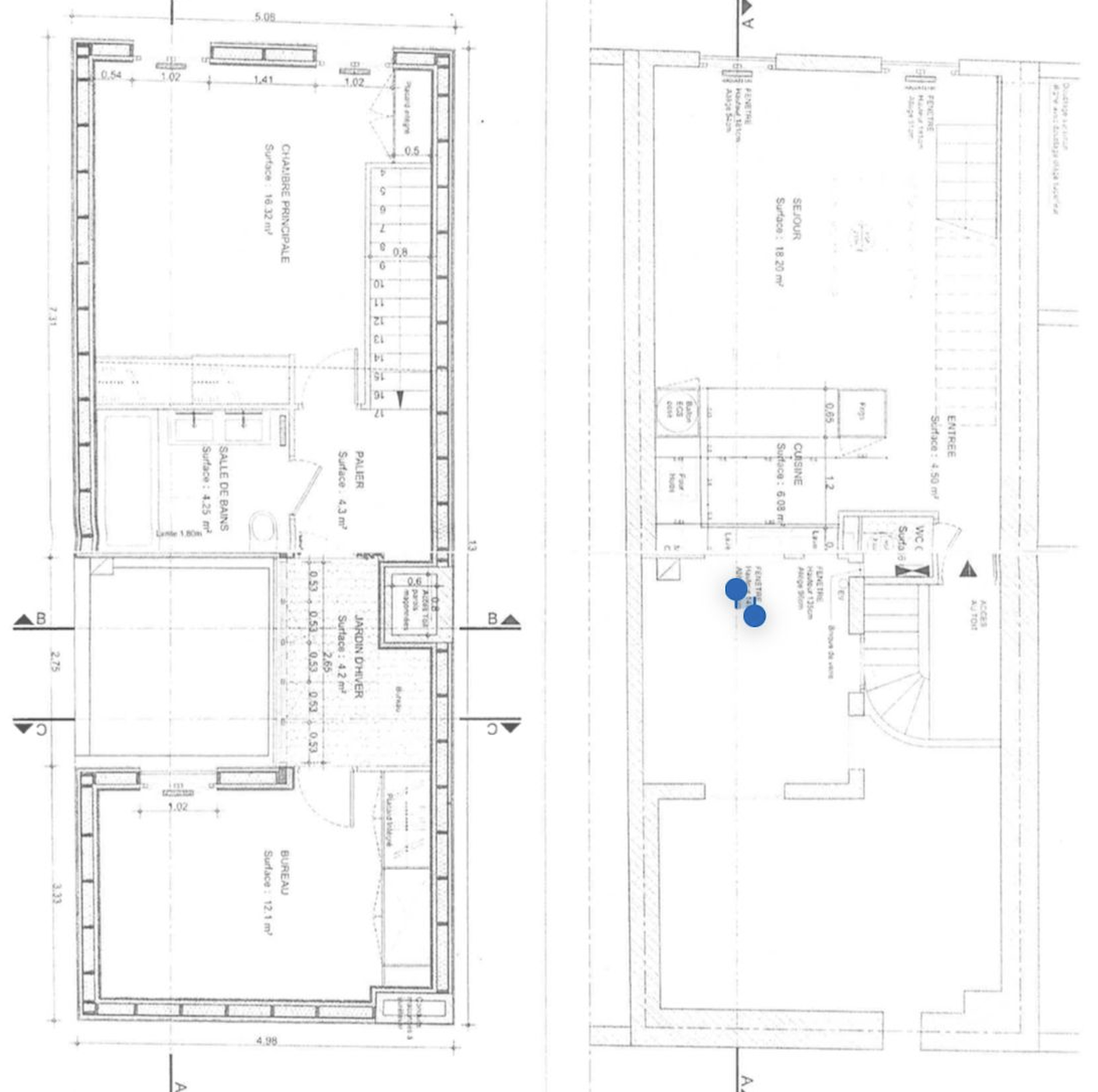
75 m²2 roomsFees charged to the sellerPrice excluding fees: €917,476DPE: E (253 kWh/m².y) / GES: B (9kg CO2/m².y)Estimated energy bill between 1,740 and 2,410 €/yearNo ongoing procedureFloor plan (PDF)
In the heart of the Gros Caillou district, in a perfectly quiet, old building with well-kept communal areas, duplex apartment, like a "house on the roofs", on the 3rd and last floor served by a staircase, in perfect condition, with excellent fittings, particularly bright and with an excellent floor plan. Second floor: entrance hall, large living room with open-plan kitchen. Second level: 2 good-sized bedrooms with remarkable volumes, bathroom with toilet, space under glass roof overlooking the Eiffel Tower. Cellar.
Les informations sur les risques auxquels ce bien est exposé sont disponibles sur le site Géorisques : www.georisques.gouv.fr