Passy
€1,150,000€10,849 / m2
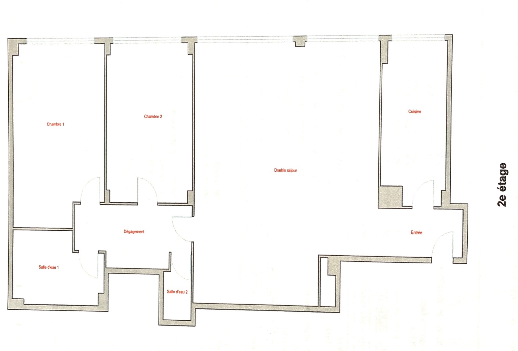
Exclusivity agreement106 m²2 roomsFees charged to the sellerPrice excluding fees: €1,116,505DPE: D (219 kWh/m².y) / GES: D (38kg CO2/m².y)No ongoing procedureFloor plan (PDF)
Ideally located at the heart of Passy's many shops, transport facilities and good schools. On the second floor, served by elevator, of a pleasant mid-twentieth century luxury residence, secure and planted with trees, a lovely, bright family apartment with a surface area of 105.86 m² loi Carrez, benefiting from a perfect layout with no loss of space, absolute calm, and plenty of sunlight thanks to its south-west orientation. Entrance hall, large living room, separate fitted kitchen (3rd bedroom possible), hallway, two large bedrooms, shower room with toilet, bathroom with toilet, plenty of storage space. Cellar. Possibility of acquiring a parking space in a neighboring building for €55,000. Exclusive to Breteuil.
Les informations sur les risques auxquels ce bien est exposé sont disponibles sur le site Géorisques : www.georisques.gouv.fr