Suresnes
€490,000€7,538 / m2
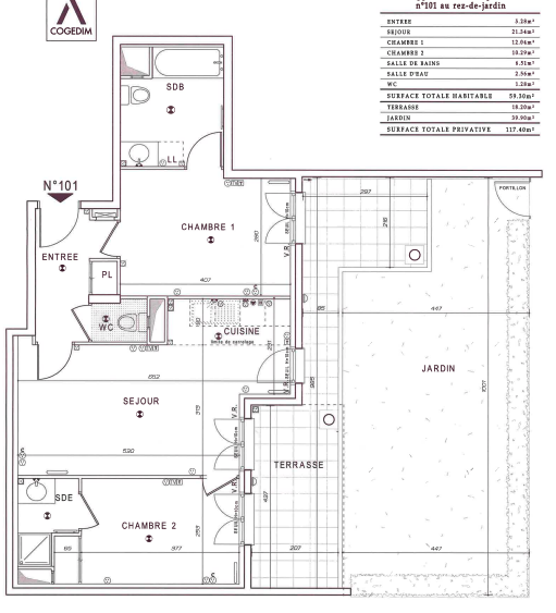
Exclusivity agreement65 m²2 roomsFees incl. tax charged to the buyer €23,333 / 5%Price excluding fees: €466,667DPE: B (74 kWh/m².y) / GES: C (12kg CO2/m².y)No ongoing procedureFloor plan (PDF)
Suresnes - Résidence Sisley
Ideally located close to shops and transport, in a high-standard condominium very well maintained by a janitor, 59 sq.m. garden-level apartment of 60 sq.m. comprising an entrance with dressing room, living room/kitchen opening onto a terrace on the same level and continuing onto a garden, two bedrooms, bathroom with toilet, shower room, separate toilet. Cellar. Parking not included.
Les informations sur les risques auxquels ce bien est exposé sont disponibles sur le site Géorisques : www.georisques.gouv.fr