Cherche Midi
€1,924,000€17,485 / m2
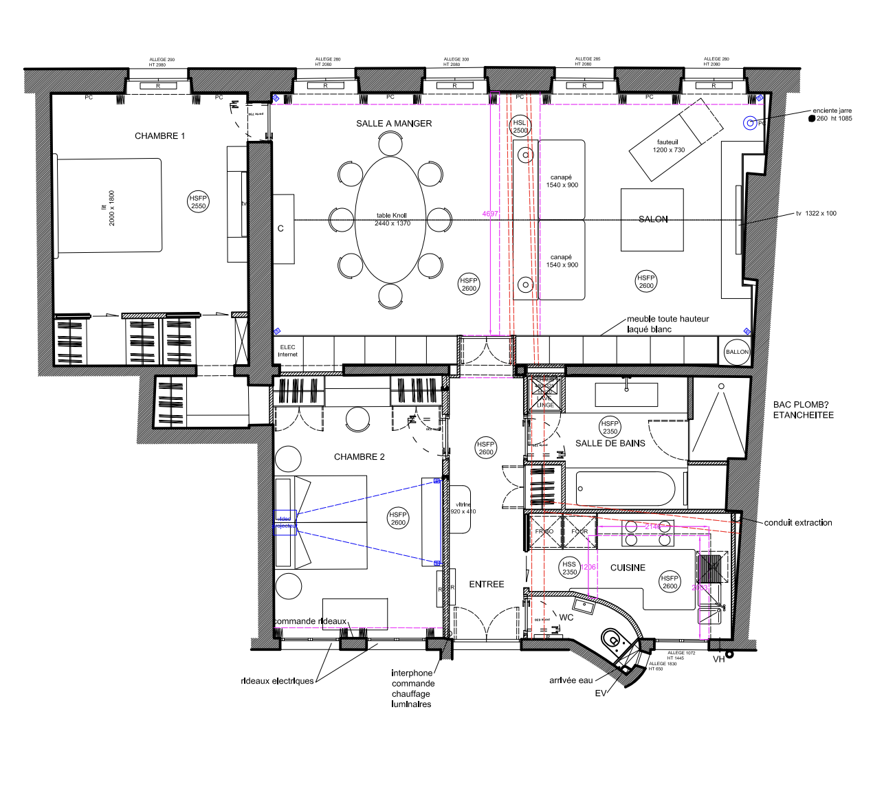
110.04 m²2 roomsFees incl. tax charged to the buyer €75,036 / 4.06%Price excluding fees: €1,848,964DPE: D (227 kWh/m².y) / GES: B (8kg CO2/m².y)No ongoing procedureFloor plan (PDF)
Cherche Midi, well-built, late 18th-century building. Good quality common areas (digicode, intercom, janitor), 3rd floor, 110 m² Loi Carrez apartment, well distributed. Entrance hall, south-facing double reception room overlooking the street, plenty of storage space, fitted and equipped kitchen, children's bedroom with unobstructed view of the gardens of a private mansion, master bedroom overlooking the street, two dressing rooms, bathroom, toilet. Cellar. All in perfect condition, carefully decorated with quality materials.
Les informations sur les risques auxquels ce bien est exposé sont disponibles sur le site Géorisques : www.georisques.gouv.fr