Passy
€1,690,000€12,901 / m2
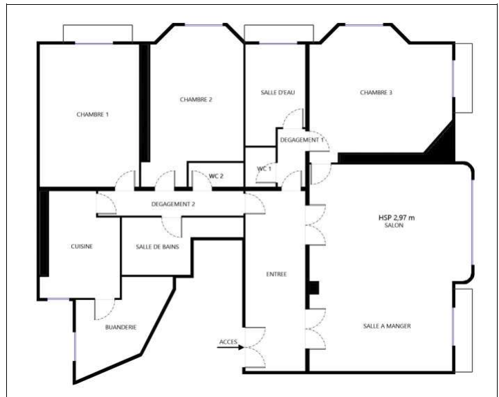
131 m²3 roomsFees charged to the sellerDPE: E (256 kWh/m².y) / GES: D (43kg CO2/m².y)No ongoing procedureFloor plan (PDF)
Passy. At the heart of numerous shops, transport facilities and renowned schools. On the second floor, served by elevator, of an attractive old 1930s freestone building with well-kept common areas, very attractive corner family apartment with a surface area of 130.70m² loi Carrez, benefiting from the charm of the old, an exemplary layout and spacious rooms. Entrance gallery, double living room, separate fitted kitchen, three large bedrooms including a master suite with en-suite shower room and toilet, second bathroom, separate toilet, laundry room, plenty of storage space. Cellar. Exclusive.
Les informations sur les risques auxquels ce bien est exposé sont disponibles sur le site Géorisques : www.georisques.gouv.fr