Place de Breteuil
€760,000€12,667 / m2
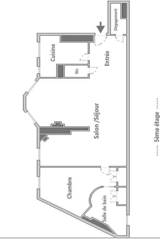
60 m²1 roomFees incl. tax charged to the buyer €36,191 / 5%Price excluding fees: €723,810DPE: F (416 kWh/m².y) / GES: F (100kg CO2/m².y)Housing with excessive energy consumptionNo ongoing procedureFloor plan (PDF)
Standing old building with very well-maintained common areas, 58m² courtyard apartment on 5th floor served by staircase, in good condition, retaining its original character (parquet flooring, moldings, fireplaces), with spacious rooms (2.90m ceilings) and a space-saving layout. Entrance hall, living room, dining room, kitchen, large master suite with bathroom and dressing room, separate toilet. Cellar.
Les informations sur les risques auxquels ce bien est exposé sont disponibles sur le site Géorisques : www.georisques.gouv.fr