Lamartine
5 000 000 €13 699 € / m2
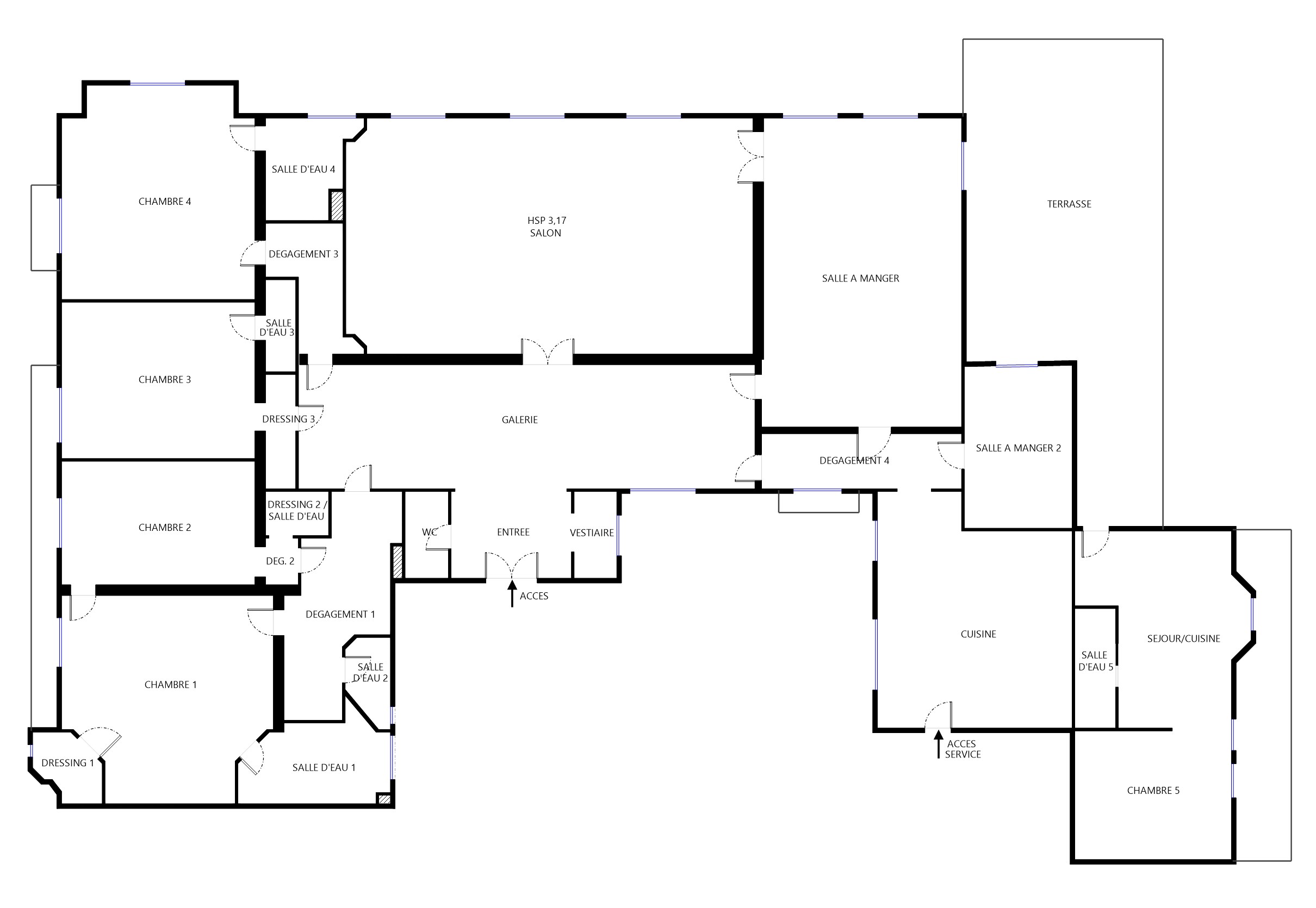
Exclusivité365 m²5 chambresDPE: E (283 kWh/m².an) / GES: D (40kg CO2/m².an)Charges annuelles 14 400 €Copropriété - 6 lotsPas de procédure en coursplan
Exclusivité. Magnifique immeuble haussmannien aux somptueuses parties communes, gardien à demeure. Appartement situé à l'étage noble bénéficiant d'une superbe terrasse de 50m² arborée, offrant une vue sur la Tour Eiffel, accessible de plain pied de la partie réception, impressionnante hauteur sous plafond, remarquables cheminées, parquet point de Hongrie, huisseries intérieures d'époque. Galerie d'entrée, vaste réception de 63m², salle à manger pouvant accueillir 15 convives, grande cuisine, petite salle à manger d'appoint, 4 chambres de très belle taille dont une suite parentale dotée de sa salle de douches, grand deux pièces indépendant avec cuisine et salle de douches, accessible par la terrasse. Cave.
Les informations sur les risques auxquels ce bien est exposé sont disponibles sur le site Géorisques : www.georisques.gouv.fr