Breteuil logo
500 000 €11 364 € / m2

Paris 18èmeFrance

Jules Joffrin

44 m²

1 chambre

Charges annuelles 2 000 €

Copropriété - 7 lots

Paris 18èmeFrance

Jules Joffrin

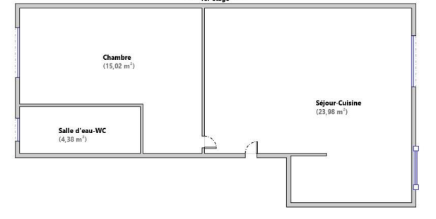
Au 1er étage par escalier, appartement de deux pièces refait à neuf, traversant est-ouest, comprenant : entrée, séjour avec cuisine ouverte donnant sur l'église Notre-Dame de Clignancourt, une chambre sur cour au calme, salle d'eau avec toilettes. Cave.

Détail des pièces

Réglementation immobilière

  • Honoraires TTC charge acquéreur 20 000 € / 4,17%
  • Nombre de lots dans la copropriété 7
  • Pas de procédure en cours
  • Les informations sur les risques auxquels ce bien est exposé sont disponibles sur le site Géorisques : www.georisques.gouv.fr
Graphique diagnostic performance énergétiqueD
Graphique émission gas à effet de serreB