Breteuil logo
1 069 000 €13 497 € / m2

Paris 11èmeFrance

Chemin Vert

79 m²

2 chambres

Copropriété - 40 lots

Paris 11èmeFrance

Chemin Vert

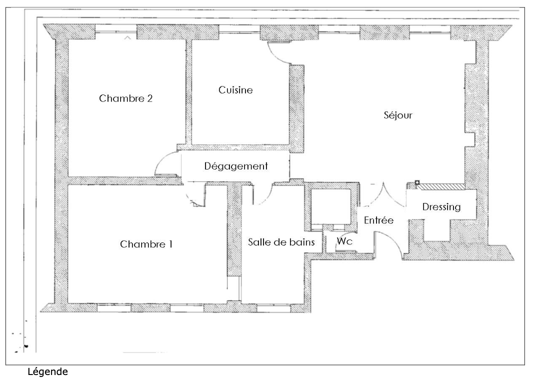
À proximité de la Place des Vosges, des commerces et des transports, immeuble datant de la fin du XIXème siècle, appartement lumineux d'une surface de 81,62 m², traversant, situé au 3ème étage desservi par ascenseur. Entrée, séjour, salle à manger, cuisine indépendante et équipée, 2 chambres, salle de bains, buanderie, toilettes séparées. Nombreux rangements, cave.

Détail des pièces

Prestations immobilières

  • Ascenseur

Réglementation immobilière

  • Honoraires charge vendeur
  • Nombre de lots dans la copropriété 40
  • Pas de procédure en cours
  • Les informations sur les risques auxquels ce bien est exposé sont disponibles sur le site Géorisques : www.georisques.gouv.fr
Graphique diagnostic performance énergétiqueD
Graphique émission gas à effet de serreD