Niel-Laugier
795 000 €12 806 € / m2
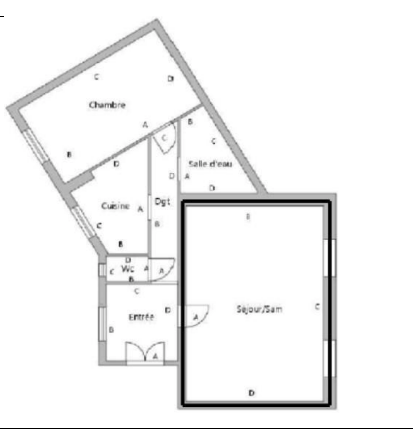
Exclusivité62.08 m²1 chambreHonoraires TTC charge acquéreur 37 857 € / 5%Prix hors honoraires: 757 143 €DPE: D (239 kWh/m².an) / GES: D (48kg CO2/m².an)Charges annuelles 3 490 €Copropriété - 14 lotsPas de procédure en coursplan
Idéalement situé dans une villa du très prisé quartier des Ternes, au quatrième étage avec ascenseur d'un immeuble en pierre de taille de bonne facture, appartement de 62 m² en très bon état général, traversant, lumineux et au calme. Entrée, double réception, cuisine séparée et équipée, chambre, salle d'eau et toilettes indépendantes. Cave. Exclusivité Breteuil.
Les informations sur les risques auxquels ce bien est exposé sont disponibles sur le site Géorisques : www.georisques.gouv.fr