Breteuil logo
3 700 € / mois

Paris 8èmeFrance

Rue de la Baume

105 m²

1 chambre

Paris 8èmeFrance

Rue de la Baume

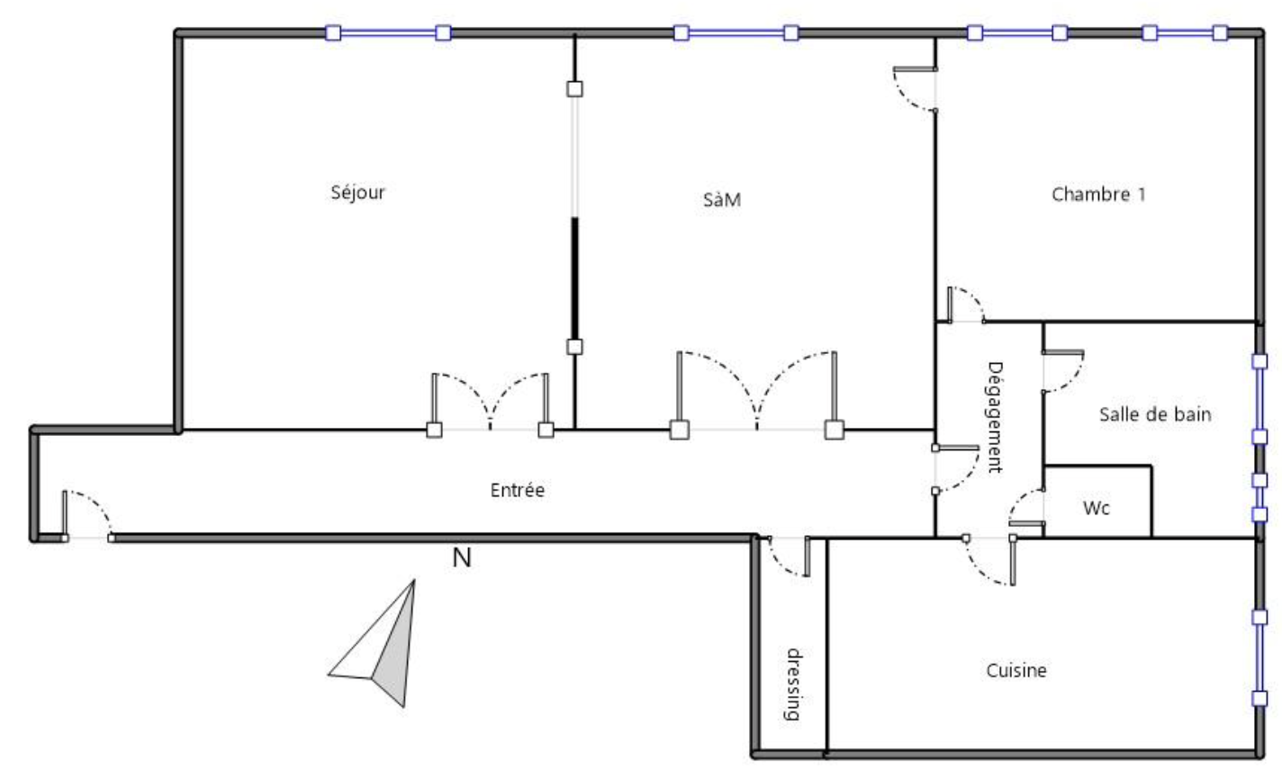
Immeuble en pierre de taille, au 4ème et dernier étage avec ascenseur, appartement de 3 pièces, non meublé, entièrement rénové. Entrée avec vestiaire, salon et salle à manger (2 x 19 m²) - possibilité de créer une seconde chambre, chambre (21 m²), cuisine aménagée, salle de bains (baignoire et douche), toilettes séparées. Chauffage et eau chaude collectifs. Cave en sous-sol.
Location en bail Loi ALUR ou bail Code civil.
Disponible immédiatement.

Détail des pièces

Prestations immobilières

  • Ascenseur
  • Non meublé
  • Longue durée
  • Cuisine séparée
  • Proximité commerces

Réglementation immobilière

  • Honoraires charge vendeur
  • Pas de procédure en cours
  • Les informations sur les risques auxquels ce bien est exposé sont disponibles sur le site Géorisques : www.georisques.gouv.fr
Graphique diagnostic performance énergétiqueD
Graphique émission gas à effet de serreD