Montparnasse
1 225 000 €10 652 € / m2
Exclusivité115 m²3 chambresHonoraires charge vendeurDPE: E (326 kWh/m².an) / GES: C (14kg CO2/m².an)Charges annuelles 4 000 €Copropriété - 20 lotsPas de procédure en coursplan
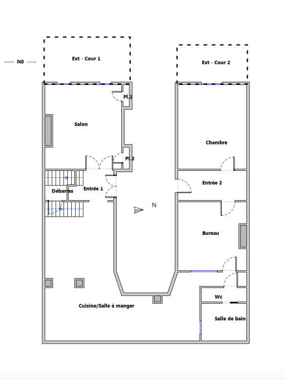
Montparnasse, proche des écoles de renom et commerces. Appartement familial de 113 m² (131 m² au sol) sur deux niveaux : rez-de-chaussée et 1er étage, avec deux espaces extérieurs en jouissance exclusive, au calme sur cour. Entrée, séjour, salle à manger avec cuisine dinatoire équipée, trois belles chambres, salle de bains avec toilettes, salle d’eau, toilettes invités et nombreux rangements. Charme de l’ancien : parquet point de Hongrie, moulures, cheminées.
Espace souplex de 18 m² aménagé en buanderie, bureau et rangements. Cave de 5 m².
Les informations sur les risques auxquels ce bien est exposé sont disponibles sur le site Géorisques : www.georisques.gouv.fr