Pont de Neuilly
1 460 000 €12 104 € / m2
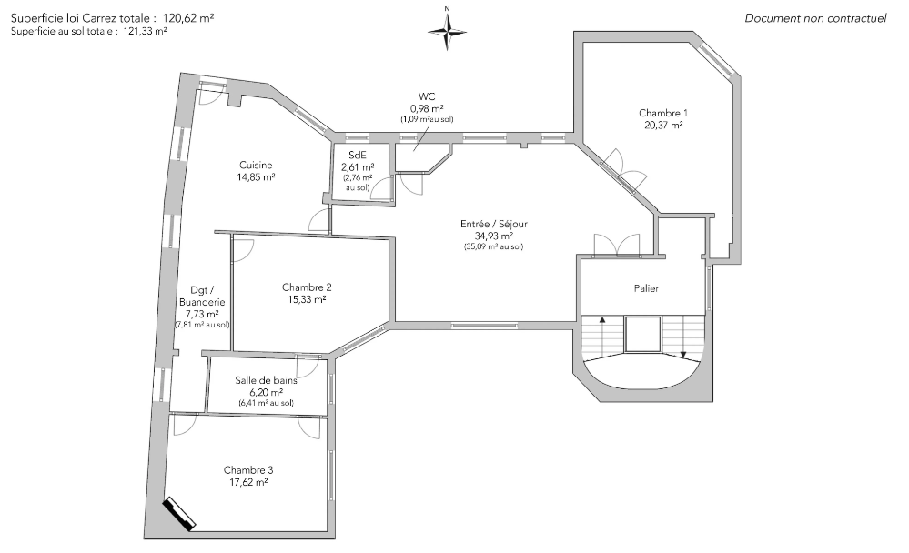
120.62 m²3 chambresHonoraires charge vendeurPrix hors honoraires: 1 404 000 €DPE: E (270 kWh/m².an) / GES: D (45kg CO2/m².an)Charges annuelles 4 700 €Copropriété - 100 lotsPas de procédure en coursplan
Pont de Neuilly. Proche des commerces, des transports et des écoles, immeuble ancien de standing avec gardien, 5ème étage, appartement familial en bon état de 121 m² bénéficiant du charme de l'ancien et de beaux volumes. Entrée, séjour de 35 m² exposé au sud doté de vues dégagées notamment sur la Tour Eiffel, cuisine ouverte dinatoire de 15 m², trois chambres spacieuses (20m² ,17m² et 15m²), salle de bains avec toilettes, salle d'eau, nombreux rangements et toilettes invités. Cave.
Les informations sur les risques auxquels ce bien est exposé sont disponibles sur le site Géorisques : www.georisques.gouv.fr