Princes Gate, SW7
65 000 £ / mois
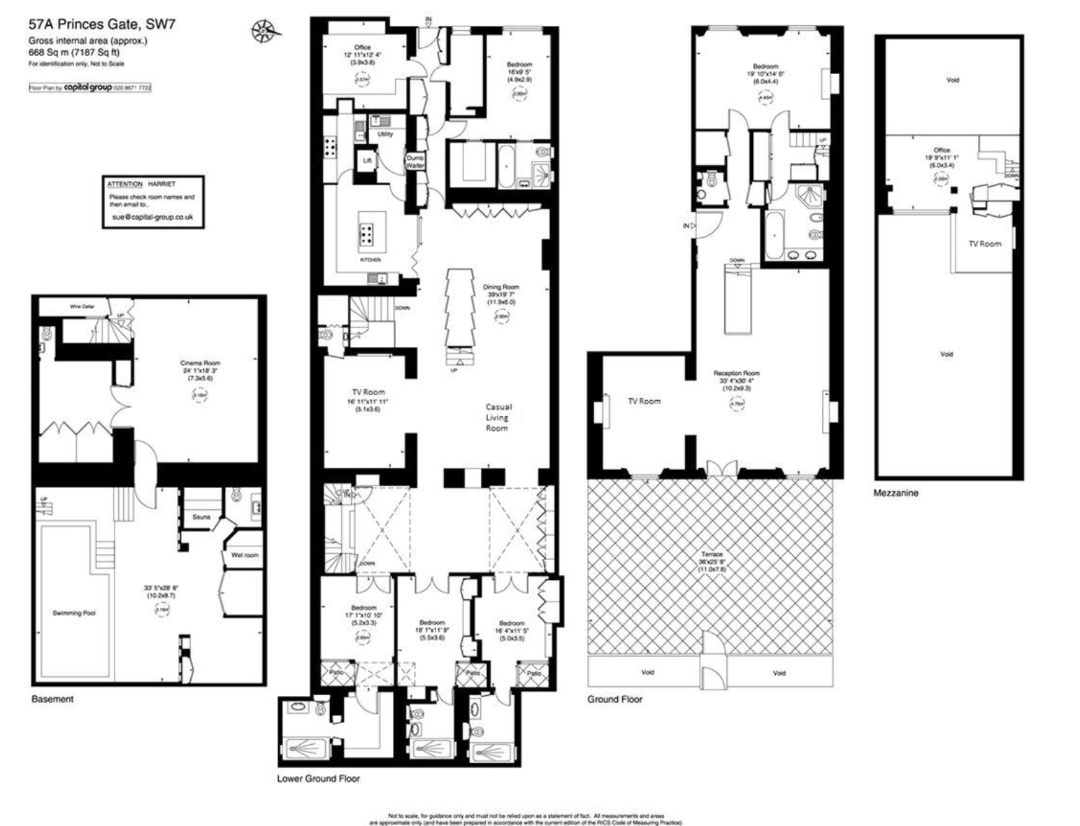
668 m²5 chambresCharges forfaitaires: 0 £plan
Il s'agit d'une propriété exceptionnelle qui dispose d'une piscine privée et d'une grande terrasse privée dans un bâtiment d'époque. Les finitions sont de très haut niveau. Avec 6 pièces de réception, dont une très élégante salle de réception et une salle de cinéma, c'est un appartement idéal pour recevoir. Il a été fini à un niveau très élevé et de telles propriétés sont rarement trouvées sur le marché. Il y a 5 chambres à coucher, toutes avec salle de bains, et avec plus de 7000 pieds carrés, il y a de la place pour tout le monde, même pour le travail à domicile. Une vie de luxe à Londres, c'est certain !
Ce quartier est toujours très recherché car il s'agit de l'un des quartiers les plus prisés du centre de Londres. Il y a des écoles fantastiques à proximité, notamment Knightsbridge School, Hill House et Eaton Square School. Il y a une pléthore d'excellents restaurants à quelques pas, des restaurants étoilés au Michelin aux bistros décontractés et aux cafés accueillants. Knightsbridge est également depuis longtemps l'une des zones de shopping les plus prisées de Londres, avec ses fabuleuses boutiques de créateurs et ses couturiers indépendants. La propriété est idéalement située à proximité des grands espaces de Hyde Park, où vous pourrez vous promener, faire du vélo, courir ou faire de l'équitation. Elle se trouve dans l'une des rues les plus célèbres de Knightsbridge, où se trouvent les musées d'histoire naturelle et Victoria et Albert.
Dépôt de garantie : Egal à 1 semaine de loyer
Dépôt de garantie : Egal à 6 semaines de loyer
Arrondissement : Westminster
Tranche d'imposition : H
Cote EPC : C
Durée du bail : Durée minimum de 6 mois