Saint Ferdinand
5 390 € / mois
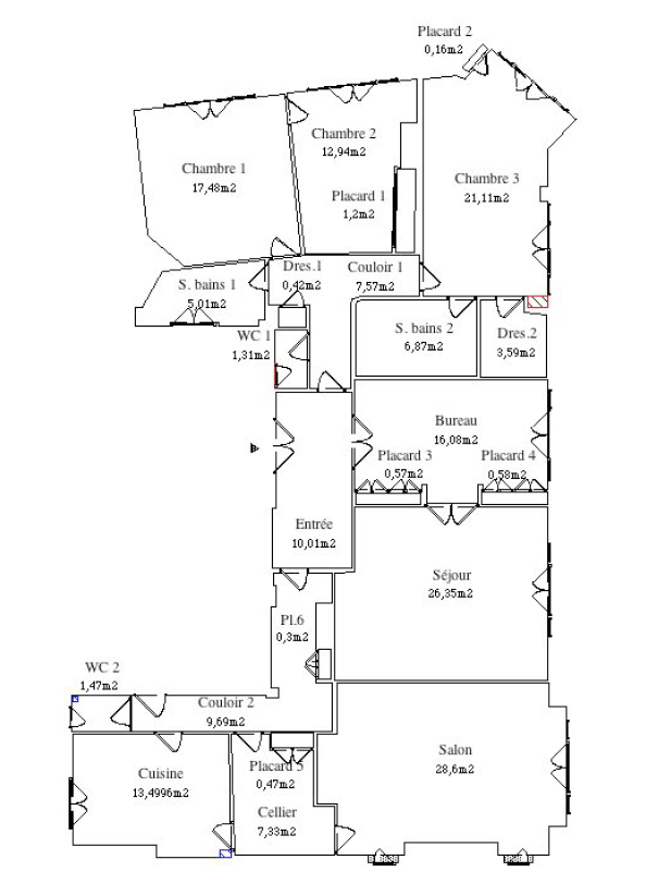
191 m²3 chambresDépôt de garantie : 4 910 €plan
Immeuble de standing, au 5ème étage sans vis-à-vis et desservi par ascenseur, appartement en parfait état. Entrée, triple réception, cuisine aménagée dotée d'un office, 3 chambres, salle de bains, salle d'eau, 2 toilettes séparées. Honoraires bail code civil 10% TTC du loyer annuel.